Vrijstaande luxe recreatiewoningen in het park Bohemien Resort te Sint Maartenszee. Deze bungaows zijn ingericht voor 6 personen. Ligging op ca. 1000 meter vanaf het strand.



Neem geheel vrijblijvend contact met ons op:
Tel. 0224 56 15 96
info@bohemienbeheer.nl
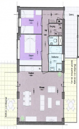
Van het type B bevindt zich er 1 appartement op de begane grond en 1 op de tweede verdieping. Beide appartementen zijn geschikt voor 4 tot 5 personen.Indeling: ruime entree met gardarobe, twee ruime slaapkamers, inpandige afsluitbare berging, gescheiden toilet, luxueus afgewerkte badkamer met ligbad, vaste wastafel en een separate douchcabine.
Riante woonkamer met schuifpuien naar beide terrassen, open keuken met hoogwaardige inbouwapparatuur.
Een Amerikaanse koel/vriescombinatie maakt deel uit van de keuken.
In de ouderslaapkamer heeft u beschikking over een riante kastruimte met schuifdeuren.
Zowel in de woonkamer als in de slaapkamers zijn aansluitingen voor TV.
Bewoonbare vloer oppervlakte 102 m2 , tuin 91 m2 .
Vier tot zes personen appartement


Vrijstaande luxe recreatiewoningen in het park Bohemien Resort te Sint Maartenszee. Deze bungaows zijn ingericht voor 6 personen. Ligging op ca. 1000 meter vanaf het strand.

Riante vrijstaande luxe boerderij villa's op ca. 900 meter vanaf het strand in Callantsoog. De villa's zijn ingericht voor 4/5 personen.
Bohemien Beheer
Zeeweg 39A
1753 BB Sint Maartensvlotbrug
T. 0224 56 15 96
info@bohemienbeheer.nl
Bohemien Beheer
Zeeweg 39A
1753 BB Sint Maartensvlotbrug